受付時間:平日9時~17時
売却マイページ
譲渡No.8894

港区の薬膳料理の居抜き売却物件の案件情報 六本木一丁目駅至近!カフェレストラン居抜き物件!

案件概要

最寄り駅

六本木一丁目 (東京メトロ南北線)
徒歩2

現賃料 / 坪単価

- / 23,150

面積 坪(㎡)

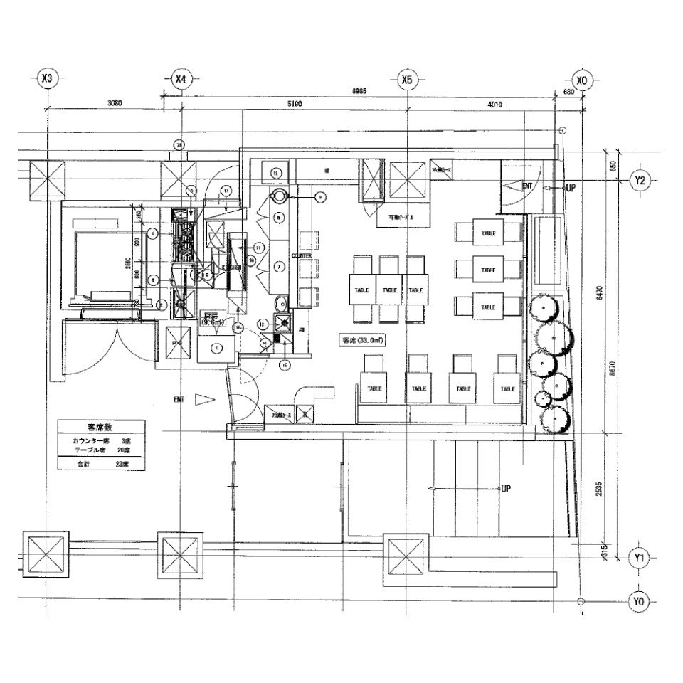
14.73坪48.7m2

希望譲渡額

相談

前業態

薬膳料理

募集終了しました

案件詳細情報

所在地

東京23区 港区

最寄り駅

六本木一丁目 (東京メトロ南北線) 徒歩2分

現賃料 / 坪単価

- / 23,150円

階数 / 建物

地上1階 / 地上12階建

面積 坪(㎡)

14.73坪48.7m2

構造

S造

保証金・敷金

-

契約期間

5年

礼金

-

希望譲渡額

相談

共益費 / 管理費

-

償却

-

更新料

-

情報公開日(更新日)

2021-09-10

売却テナントの基本情報

業態

薬膳料理

営業年数

-

営業時間

-

席数

-

コメント

-

この案件の取り扱い会社

募集終了しました

別の案件を探す
相談0円 居抜きで売却するなら、早めのご相談がおすすめです! 詳しく見る