受付時間:平日9時~17時
売却マイページ
譲渡No.8865

港区の居酒屋の居抜き売却物件の案件情報 六本木駅徒歩3分!希少な居酒屋居抜き物件!

案件概要

最寄り駅

六本木 (東京メトロ日比谷線)
徒歩3

現賃料 / 坪単価

- / 24,238

面積 坪(㎡)

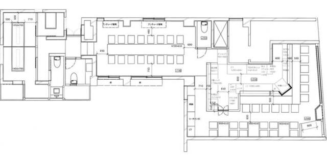
26.9坪88.926m2

希望譲渡額

0万円

前業態

居酒屋

募集終了しました

案件詳細情報

所在地

東京23区 港区

最寄り駅

六本木 (東京メトロ日比谷線) 徒歩3分

現賃料 / 坪単価

- / 24,238円

階数 / 建物

地上1階 /

面積 坪(㎡)

26.9坪88.926m2

構造

鉄筋コンクリート造

保証金・敷金

-

契約期間

普通3年

礼金

-

希望譲渡額

0万円

共益費 / 管理費

-

償却

-

更新料

-

情報公開日(更新日)

2022-07-31

売却テナントの基本情報

業態

居酒屋

営業年数

-

営業時間

-

席数

-

コメント

-

この案件の取り扱い会社

募集終了しました

別の案件を探す
相談0円 居抜きで売却するなら、早めのご相談がおすすめです! 詳しく見る