受付時間:平日9時~17時
売却マイページ
譲渡No.8670

港区の韓国料理の居抜き売却物件の案件情報 各線 麻布十番駅徒歩3分!大黒坂に面した飲食ビル内店舗!

案件概要

最寄り駅

麻布十番 (都営大江戸線)
徒歩3

現賃料 / 坪単価

- / 22,389

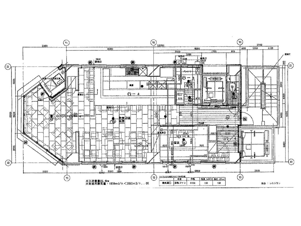
面積 坪(㎡)

26坪85.96m2

希望譲渡額

350万円

前業態

韓国料理

募集終了しました

案件詳細情報

所在地

東京23区 港区

最寄り駅

麻布十番 (都営大江戸線) 徒歩3分

麻布十番 (東京メトロ南北線) 徒歩3分

現賃料 / 坪単価

- / 22,389円

階数 / 建物

地上8階 / 地上9階建

面積 坪(㎡)

26坪85.96m2

構造

鉄骨鉄筋コンクリート造

保証金・敷金

-

契約期間

2年間

礼金

-

希望譲渡額

350万円

共益費 / 管理費

-

償却

-

更新料

-

情報公開日(更新日)

2021-02-21

現テナントの基本情報

業態

韓国料理

営業年数

-

営業時間

-

席数

-

コメント

-

この案件の取り扱い会社

募集終了しました

別の案件を探す
相談0円 居抜きで売却するなら、早めのご相談がおすすめです! 詳しく見る