受付時間:平日9時~17時
売却マイページ
譲渡No.8536

渋谷区のライブカフェの居抜き売却物件の案件情報 渋谷駅から徒歩5分!近隣にホテル、専門学校などあり

案件概要

最寄り駅

渋谷 (JR山手線)
徒歩5

現賃料 / 坪単価

- / 30,000

面積 坪(㎡)

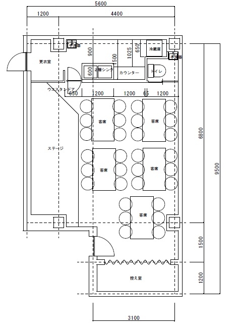
17.07坪56.43m2

希望譲渡額

50万円

前業態

ライブカフェ

募集終了しました

案件詳細情報

所在地

東京23区 渋谷区

最寄り駅

渋谷 (JR山手線) 徒歩5分

現賃料 / 坪単価

- / 30,000円

階数 / 建物

地上2階 / 地上7階建

面積 坪(㎡)

17.07坪56.43m2

構造

SRC造

保証金・敷金

-

契約期間

定借3年

礼金

-

希望譲渡額

50万円

共益費 / 管理費

-

償却

-

更新料

-

情報公開日(更新日)

2020-12-11

現テナントの基本情報

業態

ライブカフェ

営業年数

-

営業時間

-

席数

-

コメント

-

この案件の取り扱い会社

募集終了しました

別の案件を探す
相談0円 居抜きで売却するなら、早めのご相談がおすすめです! 詳しく見る