受付時間:平日9時~17時
売却マイページ
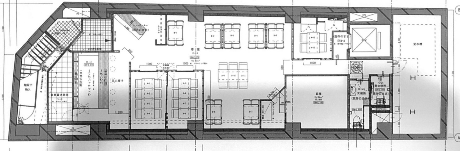
譲渡No.8428

港区のそばの居抜き売却物件の案件情報 表参道駅近!青山通りに面したビル地下1階!専用階段あり

案件概要

最寄り駅

表参道 (東京メトロ銀座線)
徒歩3

現賃料 / 坪単価

- / 24,295

面積 坪(㎡)

37.85坪125.13m2

希望譲渡額

35万円

前業態

そば

募集終了しました

案件詳細情報

所在地

東京23区 港区

最寄り駅

表参道 (東京メトロ銀座線) 徒歩3分

現賃料 / 坪単価

- / 24,295円

階数 / 建物

地下1階 / 地上9地下1階建

面積 坪(㎡)

37.85坪125.13m2

構造

SRC造

保証金・敷金

-

契約期間

普通2年

礼金

-

希望譲渡額

35万円

共益費 / 管理費

-

償却

-

更新料

-

情報公開日(更新日)

2020-07-04

売却テナントの基本情報

業態

そば

営業年数

-

営業時間

-

席数

-

コメント

-

この案件の取り扱い会社

募集終了しました

別の案件を探す
相談0円 居抜きで売却するなら、早めのご相談がおすすめです! 詳しく見る