受付時間:平日9時~17時
売却マイページ
譲渡No.841

港区のイタリアンの居抜き売却物件の案件情報 諸条件はご相談ください

案件概要

最寄り駅

田町 (JR山手線)
徒歩4

現賃料 / 坪単価

- / 22,268

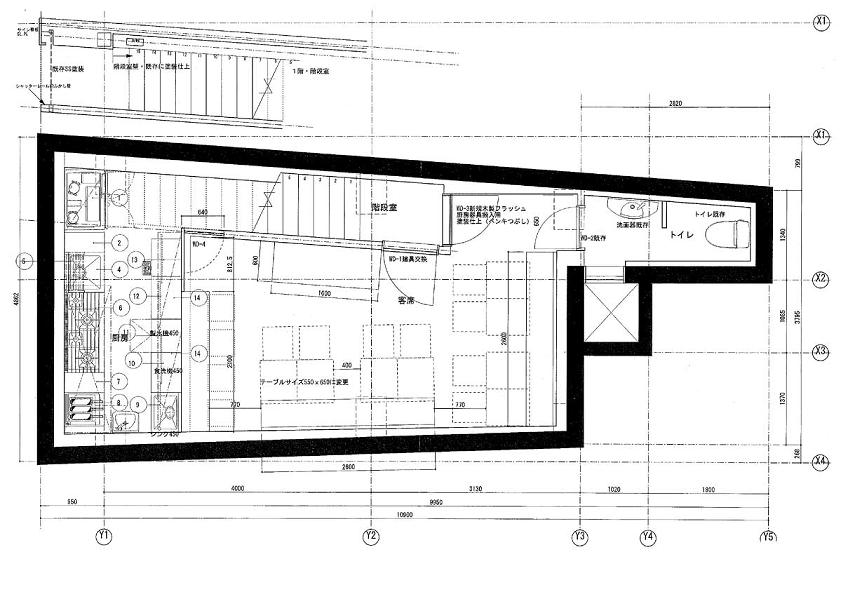
面積 坪(㎡)

12.26坪40.53m2

希望譲渡額

600万円

前業態

イタリアン

募集終了しました

案件詳細情報

所在地

東京23区 港区

最寄り駅

田町 (JR山手線) 徒歩4分

三田 (都営三田線) 徒歩3分

現賃料 / 坪単価

- / 22,268円

階数 / 建物

地下1階 / 地上2地下1階建

面積 坪(㎡)

12.26坪40.53m2

構造

鉄骨鉄筋コンクリート造

保証金・敷金

-

契約期間

3年

礼金

-

希望譲渡額

600万円

共益費 / 管理費

-

償却

-

更新料

-

情報公開日(更新日)

2009-03-10

現テナントの基本情報

業態

イタリアン

営業年数

-

営業時間

-

席数

-

コメント

-

この案件の取り扱い会社

募集終了しました

別の案件を探す
相談0円 居抜きで売却するなら、早めのご相談がおすすめです! 詳しく見る