受付時間:平日9時~17時
売却マイページ
譲渡No.8042

渋谷区の焼肉の居抜き売却物件の案件情報 渋谷駅近く、焼肉店居抜き!

案件概要

最寄り駅

渋谷 (JR山手線)
徒歩3

現賃料 / 坪単価

- / 38,500

面積 坪(㎡)

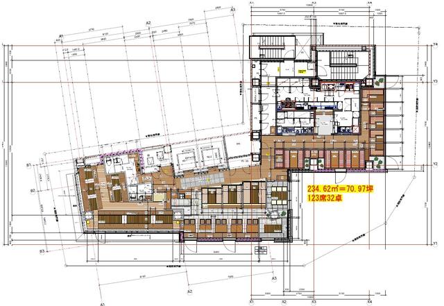
70.97坪234.62m2

希望譲渡額

290万円

前業態

焼肉

募集終了しました

案件詳細情報

所在地

東京23区 渋谷区

最寄り駅

渋谷 (JR山手線) 徒歩3分

現賃料 / 坪単価

- / 38,500円

階数 / 建物

地上5階 / 地上10地下1階建

面積 坪(㎡)

70.97坪234.62m2

構造

鉄骨・鉄骨鉄筋コンクリート造

保証金・敷金

-

契約期間

5年

礼金

-

希望譲渡額

290万円

共益費 / 管理費

-

償却

-

更新料

-

情報公開日(更新日)

2021-05-14

現テナントの基本情報

業態

焼肉

営業年数

-

営業時間

-

席数

-

コメント

-

この案件の取り扱い会社

募集終了しました

別の案件を探す
相談0円 居抜きで売却するなら、早めのご相談がおすすめです! 詳しく見る