受付時間:平日9時~17時
売却マイページ
譲渡No.7843

品川区のバーの居抜き売却物件の案件情報 五反田駅徒歩1分!ダイニングバー居抜き

案件概要

最寄り駅

五反田 (JR山手線)
徒歩1

現賃料 / 坪単価

- / 13,282

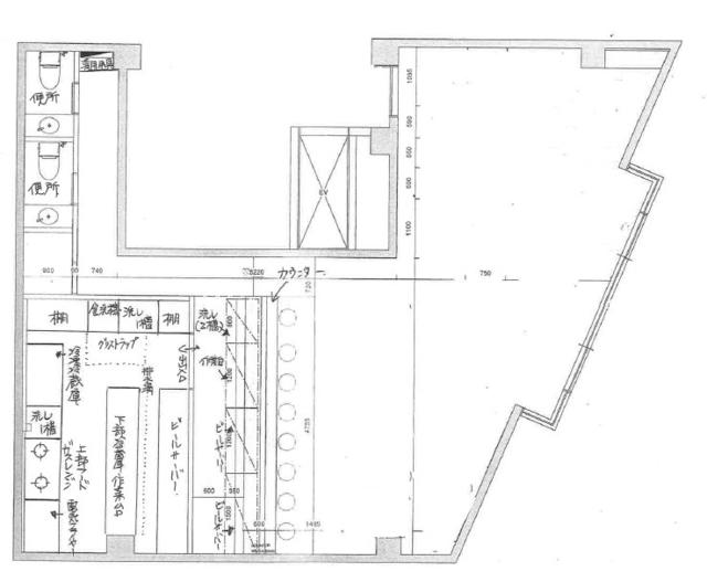
面積 坪(㎡)

24.8坪82.0m2

希望譲渡額

480万円

前業態

バー

募集終了しました

案件詳細情報

所在地

東京23区 品川区

最寄り駅

五反田 (JR山手線) 徒歩1分

現賃料 / 坪単価

- / 13,282円

階数 / 建物

地上4階 / 地上6地下1階建

面積 坪(㎡)

24.8坪82.0m2

構造

鉄筋コンクリート・鉄骨造

保証金・敷金

-

契約期間

2年間

礼金

-

希望譲渡額

480万円

共益費 / 管理費

-

償却

-

更新料

-

情報公開日(更新日)

2019-08-02

現テナントの基本情報

業態

バー

営業年数

-

営業時間

-

席数

-

コメント

-

この案件の取り扱い会社

募集終了しました

別の案件を探す
相談0円 居抜きで売却するなら、早めのご相談がおすすめです! 詳しく見る