受付時間:平日9時~17時
売却マイページ
譲渡No.7551

港区のダイニングレストランの居抜き売却物件の案件情報 麻布十番エリア、重飲食可能な店舗物件!

案件概要

最寄り駅

麻布十番 (都営大江戸線)
徒歩1

現賃料 / 坪単価

- / 29,930

面積 坪(㎡)

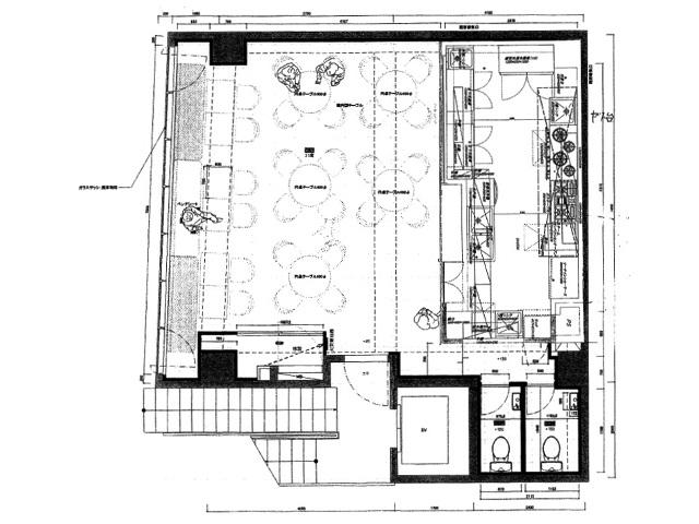
21.47坪70.98m2

希望譲渡額

相談

前業態

ダイニングレストラン

募集終了しました

案件詳細情報

所在地

東京23区 港区

最寄り駅

麻布十番 (都営大江戸線) 徒歩1分

麻布十番 (東京メトロ南北線) 徒歩1分

現賃料 / 坪単価

- / 29,930円

階数 / 建物

地上2階 /

面積 坪(㎡)

21.47坪70.98m2

構造

鉄筋コンクリート造

保証金・敷金

-

契約期間

定借10年

礼金

-

希望譲渡額

相談

共益費 / 管理費

-

償却

-

更新料

-

情報公開日(更新日)

2018-12-20

現テナントの基本情報

業態

ダイニングレストラン

営業年数

-

営業時間

-

席数

-

コメント

-

この案件の取り扱い会社

募集終了しました

別の案件を探す
相談0円 居抜きで売却するなら、早めのご相談がおすすめです! 詳しく見る