受付時間:平日9時~17時
売却マイページ
譲渡No.7430

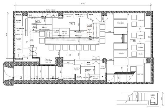
渋谷区の居酒屋の居抜き売却物件の案件情報 渋谷2丁目エリア。専用階段付き。業態制限なしの物件です。

案件概要

最寄り駅

渋谷 (JR山手線)
徒歩8

現賃料 / 坪単価

- / 21,931

面積 坪(㎡)

22.16坪73.27m2

希望譲渡額

324万円

前業態

居酒屋

募集終了しました

案件詳細情報

所在地

東京23区 渋谷区

最寄り駅

渋谷 (JR山手線) 徒歩8分

渋谷 (東京メトロ副都心線) 徒歩5分

現賃料 / 坪単価

- / 21,931円

階数 / 建物

地下1階 /

面積 坪(㎡)

22.16坪73.27m2

構造

鉄筋コンクリート造

保証金・敷金

-

契約期間

2年

礼金

-

希望譲渡額

324万円

共益費 / 管理費

-

償却

-

更新料

-

情報公開日(更新日)

2018-10-29

売却テナントの基本情報

業態

居酒屋

営業年数

-

営業時間

-

席数

-

コメント

-

この案件の取り扱い会社

募集終了しました

別の案件を探す
相談0円 居抜きで売却するなら、早めのご相談がおすすめです! 詳しく見る