受付時間:平日9時~17時
売却マイページ
譲渡No.7287

港区のダイニングバーの居抜き売却物件の案件情報 外苑前駅、神宮外苑近く!青山通り沿い、ダイニングバー居抜き店舗。

案件概要

最寄り駅

外苑前 (東京メトロ銀座線)
徒歩3

現賃料 / 坪単価

- / 18,230

面積 坪(㎡)

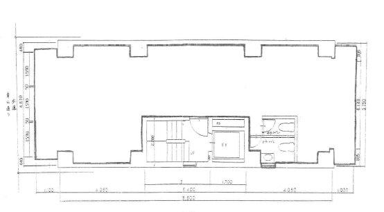
26.66坪88.16m2

希望譲渡額

324万円

前業態

ダイニングバー

募集終了しました

案件詳細情報

所在地

東京23区 港区

最寄り駅

外苑前 (東京メトロ銀座線) 徒歩3分

現賃料 / 坪単価

- / 18,230円

階数 / 建物

地上3階 /

面積 坪(㎡)

26.66坪88.16m2

構造

保証金・敷金

-

契約期間

定借2年

礼金

-

希望譲渡額

324万円

共益費 / 管理費

-

償却

-

更新料

-

情報公開日(更新日)

2018-12-03

売却テナントの基本情報

業態

ダイニングバー

営業年数

-

営業時間

-

席数

-

コメント

-

この案件の取り扱い会社

募集終了しました

別の案件を探す
相談0円 居抜きで売却するなら、早めのご相談がおすすめです! 詳しく見る