受付時間:平日9時~17時
売却マイページ
譲渡No.7171

港区の居酒屋の居抜き売却物件の案件情報 開発の進む虎ノ門駅徒歩2分!オフィスビル地下の飲食街店舗

案件概要

最寄り駅

虎ノ門 (東京メトロ銀座線)
徒歩2

現賃料 / 坪単価

- / 22,689

面積 坪(㎡)

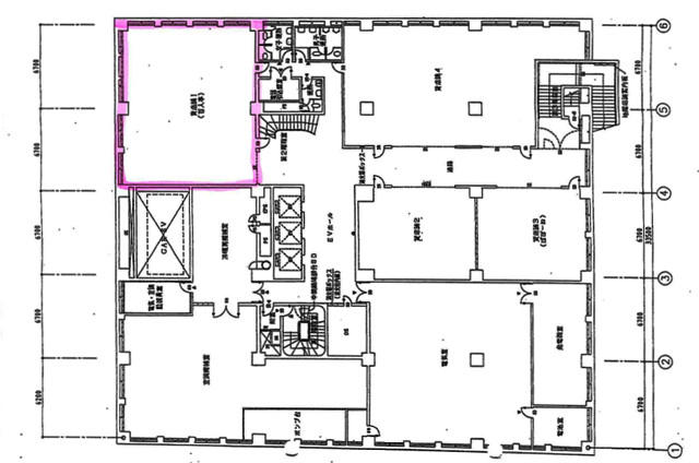
40.46坪133.75m2

希望譲渡額

162万円

前業態

居酒屋

募集終了しました

案件詳細情報

所在地

東京23区 港区

最寄り駅

虎ノ門 (東京メトロ銀座線) 徒歩2分

霞ヶ関 (東京メトロ丸ノ内線) 徒歩5分

現賃料 / 坪単価

- / 22,689円

階数 / 建物

地下1階 /

面積 坪(㎡)

40.46坪133.75m2

構造

鉄筋鉄骨コンクリート造

保証金・敷金

-

契約期間

定借5年

礼金

-

希望譲渡額

162万円

共益費 / 管理費

-

償却

-

更新料

-

情報公開日(更新日)

2018-07-11

現テナントの基本情報

業態

居酒屋

営業年数

-

営業時間

-

席数

-

コメント

-

この案件の取り扱い会社

募集終了しました

別の案件を探す
相談0円 居抜きで売却するなら、早めのご相談がおすすめです! 詳しく見る