受付時間:平日9時~17時
売却マイページ
譲渡No.7038

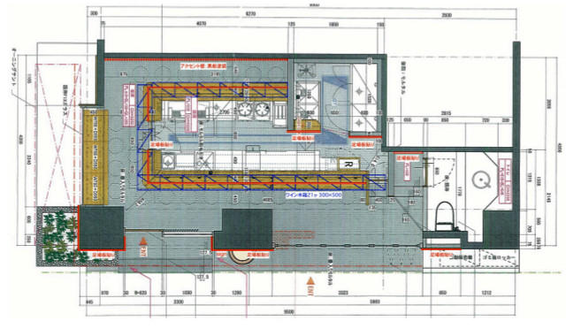
港区のバールの居抜き売却物件の案件情報 みすじ通り沿いの1階路面角地。間口が広く、視認性良好。

案件概要

最寄り駅

赤坂見附 (東京メトロ銀座線)
徒歩3

現賃料 / 坪単価

- / 43,242

面積 坪(㎡)

10.24坪33.85m2

希望譲渡額

464.4万円

前業態

バール

募集終了しました

案件詳細情報

所在地

東京23区 港区

最寄り駅

赤坂見附 (東京メトロ銀座線) 徒歩3分

赤坂 (東京メトロ千代田線) 徒歩3分

現賃料 / 坪単価

- / 43,242円

階数 / 建物

地上1階 /

面積 坪(㎡)

10.24坪33.85m2

構造

鉄筋コンクリート造

保証金・敷金

-

契約期間

2年

礼金

-

希望譲渡額

464.4万円

共益費 / 管理費

-

償却

-

更新料

-

情報公開日(更新日)

2018-03-22

現テナントの基本情報

業態

バール

営業年数

-

営業時間

-

席数

-

コメント

-

この案件の取り扱い会社

募集終了しました

別の案件を探す
相談0円 居抜きで売却するなら、早めのご相談がおすすめです! 詳しく見る