受付時間:平日9時~17時
売却マイページ
譲渡No.7035

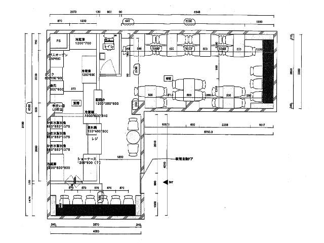
渋谷区のカフェの居抜き売却物件の案件情報 神宮前交差点より徒歩1分。美内装のカフェ居抜き物件

案件概要

最寄り駅

明治神宮前 (東京メトロ千代田線)
徒歩1

現賃料 / 坪単価

- / 25,688

面積 坪(㎡)

19.34坪63.94m2

希望譲渡額

相談

前業態

カフェ

募集終了しました

案件詳細情報

所在地

東京23区 渋谷区

最寄り駅

明治神宮前 (東京メトロ千代田線) 徒歩1分

明治神宮前 (東京メトロ副都心線) 徒歩1分

現賃料 / 坪単価

- / 25,688円

階数 / 建物

地下1階 /

面積 坪(㎡)

19.34坪63.94m2

構造

鉄筋鉄骨コンクリート造

保証金・敷金

-

契約期間

3年

礼金

-

希望譲渡額

相談

共益費 / 管理費

-

償却

-

更新料

-

情報公開日(更新日)

2018-03-20

売却テナントの基本情報

業態

カフェ

営業年数

-

営業時間

-

席数

-

コメント

-

この案件の取り扱い会社

募集終了しました

別の案件を探す
相談0円 居抜きで売却するなら、早めのご相談がおすすめです! 詳しく見る