受付時間:平日9時~17時
売却マイページ
譲渡No.7034

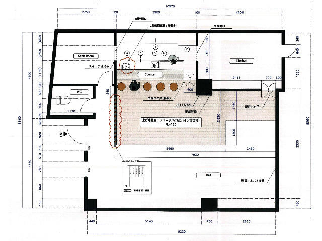
調布市のダイニングレストランの居抜き売却物件の案件情報 調布駅徒歩5分。品川通りに面するダイニング居抜き物件。

案件概要

最寄り駅

調布 (京王本線)
徒歩5

現賃料 / 坪単価

- / 12,992

面積 坪(㎡)

26.6坪87.95m2

希望譲渡額

216万円

前業態

ダイニングレストラン

募集終了しました

案件詳細情報

所在地

東京都下 調布市

最寄り駅

調布 (京王本線) 徒歩5分

調布 (京王相模原線) 徒歩5分

現賃料 / 坪単価

- / 12,992円

階数 / 建物

地上2階 /

面積 坪(㎡)

26.6坪87.95m2

構造

鉄筋コンクリート造

保証金・敷金

-

契約期間

3年

礼金

-

希望譲渡額

216万円

共益費 / 管理費

-

償却

-

更新料

-

情報公開日(更新日)

2018-03-20

現テナントの基本情報

業態

ダイニングレストラン

営業年数

-

営業時間

-

席数

-

コメント

-

この案件の取り扱い会社

募集終了しました

別の案件を探す
相談0円 居抜きで売却するなら、早めのご相談がおすすめです! 詳しく見る