受付時間:平日9時~17時
売却マイページ
譲渡No.699

川崎市高津区のバー・軽食の居抜き売却物件の案件情報 諸条件はご相談ください

案件概要

最寄り駅

溝の口 (東急田園都市線)
徒歩1

現賃料 / 坪単価

- / 9,809

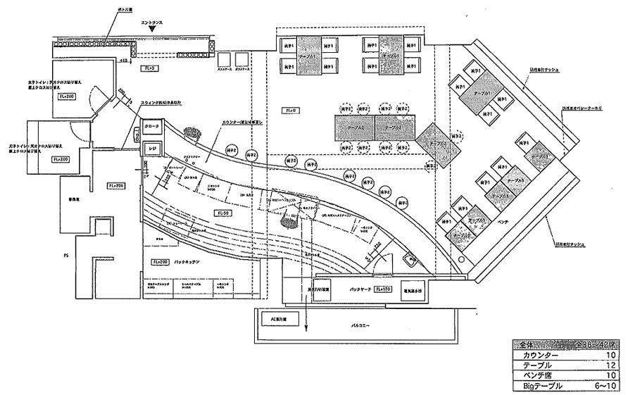
面積 坪(㎡)

35.68坪117.94m2

希望譲渡額

335万円

前業態

バー・軽食

募集終了しました

案件詳細情報

所在地

神奈川県 川崎市高津区

最寄り駅

溝の口 (東急田園都市線) 徒歩1分

武蔵溝ノ口 (JR南武線) 徒歩1分

現賃料 / 坪単価

- / 9,809円

階数 / 建物

地上4階 /

面積 坪(㎡)

35.68坪117.94m2

構造

保証金・敷金

-

契約期間

3年間

礼金

-

希望譲渡額

335万円

共益費 / 管理費

-

償却

-

更新料

-

情報公開日(更新日)

2009-01-26

売却テナントの基本情報

業態

バー・軽食

営業年数

-

営業時間

-

席数

-

コメント

-

この案件の取り扱い会社

募集終了しました

別の案件を探す
相談0円 居抜きで売却するなら、早めのご相談がおすすめです! 詳しく見る