受付時間:平日9時~17時
売却マイページ
譲渡No.6865

中野区の居酒屋の居抜き売却物件の案件情報 鷺ノ宮駅近く!1階路面の居酒屋居抜き物件です。

案件概要

最寄り駅

鷺ノ宮 (西武新宿線)
徒歩2

現賃料 / 坪単価

- / 14,143

面積 坪(㎡)

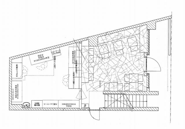
8.4坪27.769m2

希望譲渡額

180万円

前業態

居酒屋

募集終了しました

案件詳細情報

所在地

東京23区 中野区

最寄り駅

鷺ノ宮 (西武新宿線) 徒歩2分

現賃料 / 坪単価

- / 14,143円

階数 / 建物

地上1階 / 地上4地下1階建

面積 坪(㎡)

8.4坪27.769m2

構造

鉄骨鉄筋コンクリート造

保証金・敷金

-

契約期間

3年

礼金

-

希望譲渡額

180万円

共益費 / 管理費

-

償却

-

更新料

-

情報公開日(更新日)

2018-06-22

現テナントの基本情報

業態

居酒屋

営業年数

-

営業時間

-

席数

-

コメント

-

この案件の取り扱い会社

募集終了しました

別の案件を探す
相談0円 居抜きで売却するなら、早めのご相談がおすすめです! 詳しく見る