受付時間:平日9時~17時
売却マイページ
譲渡No.6710

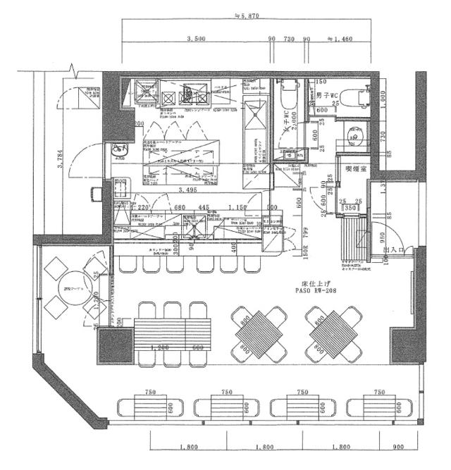
岡崎市のスペイン料理の居抜き売却物件の案件情報 内装・厨房機器などが付いていますので即営業が可能な店舗です。JR岡崎駅より徒歩3分

案件概要

最寄り駅

岡崎 (JR東海道本線)
徒歩3

現賃料 / 坪単価

- / 8,640

面積 坪(㎡)

19.29坪63.769m2

希望譲渡額

100万円

前業態

スペイン料理

募集終了しました

案件詳細情報

所在地

愛知県 岡崎市

最寄り駅

岡崎 (JR東海道本線) 徒歩3分

現賃料 / 坪単価

- / 8,640円

階数 / 建物

地上3階 / 地上4階建

面積 坪(㎡)

19.29坪63.769m2

構造

SRC造

保証金・敷金

-

契約期間

5年間

礼金

-

希望譲渡額

100万円

共益費 / 管理費

-

償却

-

更新料

-

情報公開日(更新日)

2017-12-26

現テナントの基本情報

業態

スペイン料理

営業年数

-

営業時間

-

席数

-

コメント

-

この案件の取り扱い会社

募集終了しました

別の案件を探す
相談0円 居抜きで売却するなら、早めのご相談がおすすめです! 詳しく見る