受付時間:平日9時~17時
売却マイページ
譲渡No.6625

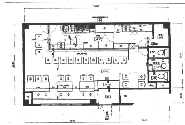
さいたま市北区のフレンチの居抜き売却物件の案件情報 宮原駅至近! 美装ビストロの居抜き店舗です!

案件概要

最寄り駅

宮原 (JR高崎線)
徒歩2

現賃料 / 坪単価

- / 10,214

面積 坪(㎡)

21.04坪69.55m2

希望譲渡額

330万円

前業態

フレンチ

募集終了しました

案件詳細情報

所在地

埼玉県 さいたま市北区

最寄り駅

宮原 (JR高崎線) 徒歩2分

現賃料 / 坪単価

- / 10,214円

階数 / 建物

地上1階 / 地上4階建

面積 坪(㎡)

21.04坪69.55m2

構造

鉄骨陸屋根造

保証金・敷金

-

契約期間

3年

礼金

-

希望譲渡額

330万円

共益費 / 管理費

-

償却

-

更新料

-

情報公開日(更新日)

2017-07-27

現テナントの基本情報

業態

フレンチ

営業年数

-

営業時間

-

席数

-

コメント

-

この案件の取り扱い会社

募集終了しました

別の案件を探す
相談0円 居抜きで売却するなら、早めのご相談がおすすめです! 詳しく見る