受付時間:平日9時~17時
売却マイページ
譲渡No.6580

川崎市高津区のカフェの居抜き売却物件の案件情報 溝の口駅近く!1階路面のカフェ居抜き店舗です!

案件概要

最寄り駅

溝の口 (東急田園都市線)
徒歩4

現賃料 / 坪単価

- / 18,000

面積 坪(㎡)

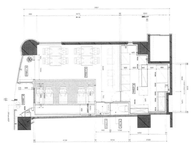
15.55坪51.405m2

希望譲渡額

200万円

前業態

カフェ

募集終了しました

案件詳細情報

所在地

神奈川県 川崎市高津区

最寄り駅

溝の口 (東急田園都市線) 徒歩4分

現賃料 / 坪単価

- / 18,000円

階数 / 建物

地上1階 /

面積 坪(㎡)

15.55坪51.405m2

構造

保証金・敷金

-

契約期間

3年

礼金

-

希望譲渡額

200万円

共益費 / 管理費

-

償却

-

更新料

-

情報公開日(更新日)

2017-06-08

売却テナントの基本情報

業態

カフェ

営業年数

-

営業時間

-

席数

-

コメント

-

この案件の取り扱い会社

募集終了しました

別の案件を探す
相談0円 居抜きで売却するなら、早めのご相談がおすすめです! 詳しく見る