受付時間:平日9時~17時
売却マイページ
譲渡No.6179

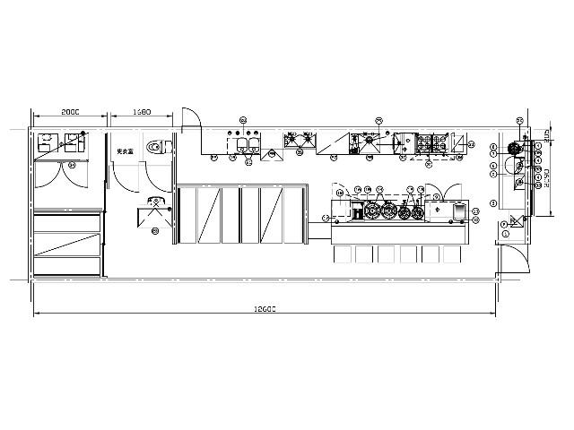
中野区のラーメンの居抜き売却物件の案件情報 東中野銀座通り商店街沿い。ラーメン屋居抜き物件

案件概要

最寄り駅

東中野 (JR中央線)
徒歩5

現賃料 / 坪単価

- / 20,250

面積 坪(㎡)

16坪52.9m2

希望譲渡額

302.4万円

前業態

ラーメン

募集終了しました

案件詳細情報

所在地

東京23区 中野区

最寄り駅

東中野 (JR中央線) 徒歩5分

現賃料 / 坪単価

- / 20,250円

階数 / 建物

地上1階 /

面積 坪(㎡)

16坪52.9m2

構造

木造

保証金・敷金

-

契約期間

3年

礼金

-

希望譲渡額

302.4万円

共益費 / 管理費

-

償却

-

更新料

-

情報公開日(更新日)

2016-08-24

売却テナントの基本情報

業態

ラーメン

営業年数

-

営業時間

-

席数

-

コメント

-

この案件の取り扱い会社

募集終了しました

別の案件を探す
相談0円 居抜きで売却するなら、早めのご相談がおすすめです! 詳しく見る