受付時間:平日9時~17時
売却マイページ
譲渡No.6130

港区のビストロの居抜き売却物件の案件情報 外苑前駅から徒歩4分!外苑西通り沿い、ビストロ居抜き店舗!

案件概要

最寄り駅

外苑前 (東京メトロ銀座線)
徒歩4

現賃料 / 坪単価

- / 14,057

面積 坪(㎡)

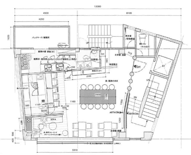
25.61坪84.68m2

希望譲渡額

200万円

前業態

ビストロ

募集終了しました

案件詳細情報

所在地

東京23区 港区

最寄り駅

外苑前 (東京メトロ銀座線) 徒歩4分

現賃料 / 坪単価

- / 14,057円

階数 / 建物

地上2階 / 地上6地下1階建

面積 坪(㎡)

25.61坪84.68m2

構造

鉄筋コンクリート造

保証金・敷金

-

契約期間

2年間

礼金

-

希望譲渡額

200万円

共益費 / 管理費

-

償却

-

更新料

-

情報公開日(更新日)

2016-07-11

現テナントの基本情報

業態

ビストロ

営業年数

-

営業時間

-

席数

-

コメント

-

この案件の取り扱い会社

募集終了しました

別の案件を探す
相談0円 居抜きで売却するなら、早めのご相談がおすすめです! 詳しく見る