受付時間:平日9時~17時
売却マイページ
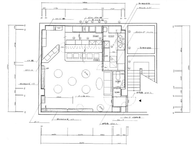
譲渡No.5844

渋谷区のバーの居抜き売却物件の案件情報 渋谷駅より徒歩3分!飲食店が多数出店しているエリアです。

案件概要

最寄り駅

渋谷 (JR山手線)
徒歩3

現賃料 / 坪単価

- / 24,840

面積 坪(㎡)

20坪66.11m2

希望譲渡額

54万円

前業態

バー

募集終了しました

案件詳細情報

所在地

東京23区 渋谷区

最寄り駅

渋谷 (JR山手線) 徒歩3分

渋谷 (東京メトロ半蔵門線) 徒歩3分

現賃料 / 坪単価

- / 24,840円

階数 / 建物

地下1階 /

面積 坪(㎡)

20坪66.11m2

構造

鉄筋コンクリート造

保証金・敷金

-

契約期間

定借5年

礼金

-

希望譲渡額

54万円

共益費 / 管理費

-

償却

-

更新料

-

情報公開日(更新日)

2016-02-15

現テナントの基本情報

業態

バー

営業年数

-

営業時間

-

席数

-

コメント

-

この案件の取り扱い会社

募集終了しました

別の案件を探す
相談0円 居抜きで売却するなら、早めのご相談がおすすめです! 詳しく見る