受付時間:平日9時~17時
売却マイページ
譲渡No.5761

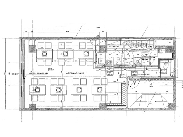
港区の居酒屋の居抜き売却物件の案件情報 外苑東通りに位置し、賑わいのあるエリア。厨房区画あります。

案件概要

最寄り駅

六本木 (東京メトロ日比谷線)
徒歩1

現賃料 / 坪単価

- / 22,537

面積 坪(㎡)

18.33坪60.59m2

希望譲渡額

54万円

前業態

居酒屋

募集終了しました

案件詳細情報

所在地

東京23区 港区

最寄り駅

六本木 (東京メトロ日比谷線) 徒歩1分

六本木 (都営大江戸線) 徒歩1分

現賃料 / 坪単価

- / 22,537円

階数 / 建物

地上3階 /

面積 坪(㎡)

18.33坪60.59m2

構造

RC造

保証金・敷金

-

契約期間

2年

礼金

-

希望譲渡額

54万円

共益費 / 管理費

-

償却

-

更新料

-

情報公開日(更新日)

2015-11-02

売却テナントの基本情報

業態

居酒屋

営業年数

-

営業時間

-

席数

-

コメント

-

この案件の取り扱い会社

募集終了しました

別の案件を探す
相談0円 居抜きで売却するなら、早めのご相談がおすすめです! 詳しく見る