受付時間:平日9時~17時
売却マイページ
譲渡No.5686

武蔵野市のそばの居抜き売却物件の案件情報 スキップ通り商店街至近です。間口が広く、角地のため視認性良好!

案件概要

最寄り駅

武蔵境 (JR中央線)
徒歩3

現賃料 / 坪単価

- / 18,090

面積 坪(㎡)

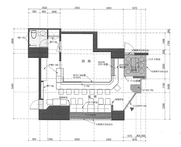
17.91坪59.21m2

希望譲渡額

205.2万円

前業態

そば

募集終了しました

案件詳細情報

所在地

東京都下 武蔵野市

最寄り駅

武蔵境 (JR中央線) 徒歩3分

現賃料 / 坪単価

- / 18,090円

階数 / 建物

地上1階 /

面積 坪(㎡)

17.91坪59.21m2

構造

RC造

保証金・敷金

-

契約期間

3年

礼金

-

希望譲渡額

205.2万円

共益費 / 管理費

-

償却

-

更新料

-

情報公開日(更新日)

2015-09-01

売却テナントの基本情報

業態

そば

営業年数

-

営業時間

-

席数

-

コメント

-

この案件の取り扱い会社

募集終了しました

別の案件を探す
相談0円 居抜きで売却するなら、早めのご相談がおすすめです! 詳しく見る