受付時間:平日9時~17時
売却マイページ
譲渡No.5423

豊島区のカフェの居抜き売却物件の案件情報 1階路面店、視認性は抜群です! カフェバーの居抜き店舗!

案件概要

最寄り駅

要町 (東京メトロ有楽町線)
徒歩3

現賃料 / 坪単価

- / 14,270

面積 坪(㎡)

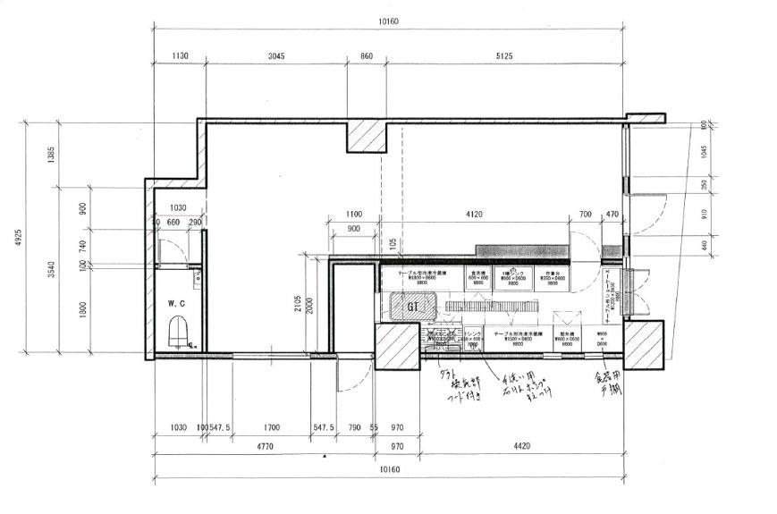
16.65坪55.04m2

希望譲渡額

180万円

前業態

カフェ

募集終了しました

案件詳細情報

所在地

東京23区 豊島区

最寄り駅

要町 (東京メトロ有楽町線) 徒歩3分

池袋 (JR山手線) 徒歩8分

現賃料 / 坪単価

- / 14,270円

階数 / 建物

地上1階 / 地上10階建

面積 坪(㎡)

16.65坪55.04m2

構造

鉄筋コンクリート造

保証金・敷金

-

契約期間

3年

礼金

-

希望譲渡額

180万円

共益費 / 管理費

-

償却

-

更新料

-

情報公開日(更新日)

2015-03-17

売却テナントの基本情報

業態

カフェ

営業年数

-

営業時間

-

席数

-

コメント

-

この案件の取り扱い会社

募集終了しました

別の案件を探す
相談0円 居抜きで売却するなら、早めのご相談がおすすめです! 詳しく見る