受付時間:平日9時~17時
売却マイページ
譲渡No.4844

渋谷区のバーの居抜き売却物件の案件情報 隠れ家的お店に最適!

案件概要

最寄り駅

渋谷 (JR山手線)
徒歩6

現賃料 / 坪単価

- / 20,347

面積 坪(㎡)

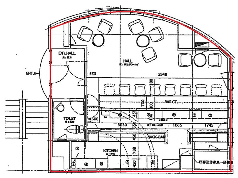
17.3坪57.0m2

希望譲渡額

162万円

前業態

バー

募集終了しました

案件詳細情報

所在地

東京23区 渋谷区

最寄り駅

渋谷 (JR山手線) 徒歩6分

渋谷 (京王井の頭線) 徒歩6分

現賃料 / 坪単価

- / 20,347円

階数 / 建物

地上1階 /

面積 坪(㎡)

17.3坪57.0m2

構造

鉄筋コンクリート造

保証金・敷金

-

契約期間

2年

礼金

-

希望譲渡額

162万円

共益費 / 管理費

-

償却

-

更新料

-

情報公開日(更新日)

2014-04-23

現テナントの基本情報

業態

バー

営業年数

-

営業時間

-

席数

-

コメント

-

この案件の取り扱い会社

募集終了しました

別の案件を探す
相談0円 居抜きで売却するなら、早めのご相談がおすすめです! 詳しく見る