受付時間:平日9時~17時
売却マイページ
譲渡No.475

港区のそばダイニングの居抜き売却物件の案件情報 諸条件はご相談ください

案件概要

最寄り駅

赤坂見附 (東京メトロ銀座線)
徒歩3

現賃料 / 坪単価

- / 22,500

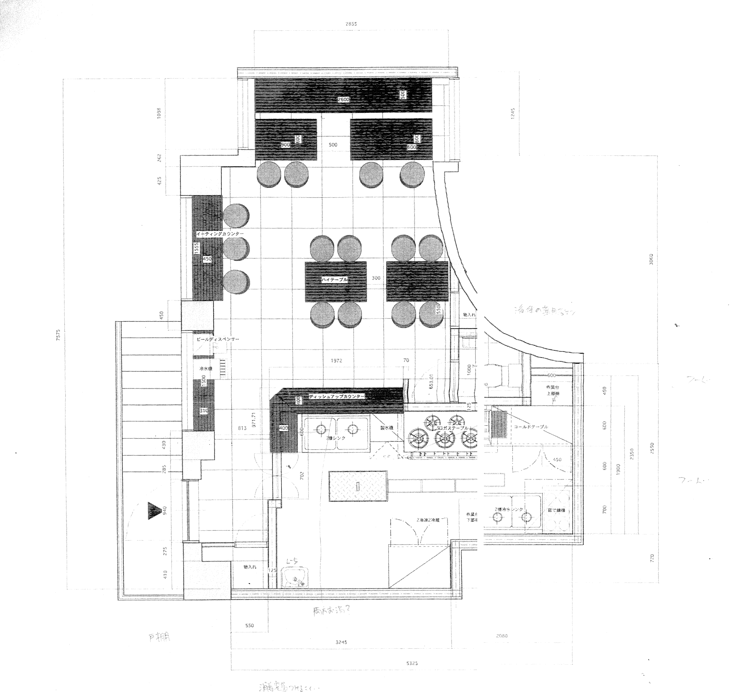
面積 坪(㎡)

14坪46.0m2

希望譲渡額

450万円

前業態

そばダイニング

募集終了しました

案件詳細情報

所在地

東京23区 港区

最寄り駅

赤坂見附 (東京メトロ銀座線) 徒歩3分

赤坂 (東京メトロ千代田線) 徒歩5分

現賃料 / 坪単価

- / 22,500円

階数 / 建物

地上1(中2)階 / 地上5地下2階建

面積 坪(㎡)

14坪46.0m2

構造

RC造

保証金・敷金

-

契約期間

2年間

礼金

-

希望譲渡額

450万円

共益費 / 管理費

-

償却

-

更新料

-

情報公開日(更新日)

2008-07-24

現テナントの基本情報

業態

そばダイニング

営業年数

-

営業時間

-

席数

-

コメント

-

この案件の取り扱い会社

募集終了しました

別の案件を探す
相談0円 居抜きで売却するなら、早めのご相談がおすすめです! 詳しく見る