受付時間:平日9時~17時
売却マイページ
譲渡No.4470

港区のカフェバーの居抜き売却物件の案件情報 年内までに賃貸借契約締結可能な方限定!即出店可能です!

案件概要

最寄り駅

外苑前 (東京メトロ銀座線)
徒歩2

現賃料 / 坪単価

- / 23,351

面積 坪(㎡)

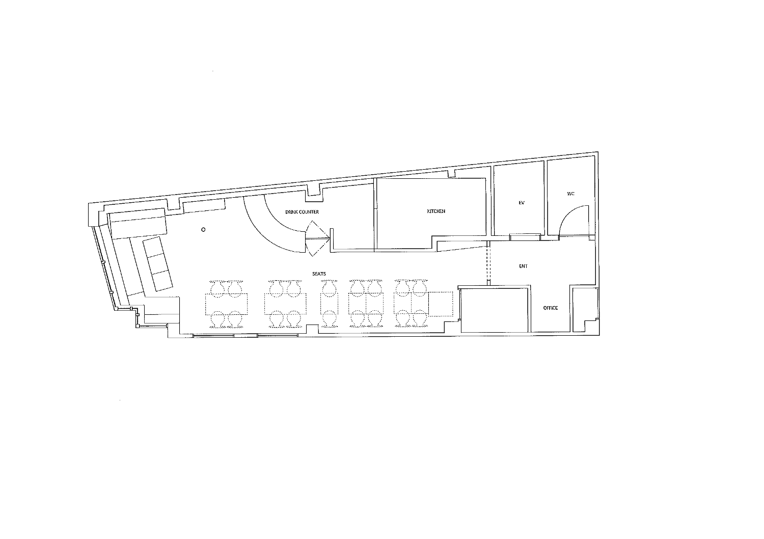
17.13坪56.63m2

希望譲渡額

0万円

前業態

カフェバー

募集終了しました

案件詳細情報

所在地

東京23区 港区

最寄り駅

外苑前 (東京メトロ銀座線) 徒歩2分

外苑前 (東京メトロ半蔵門線) 徒歩8分

現賃料 / 坪単価

- / 23,351円

階数 / 建物

地上6階 / 地上6階建

面積 坪(㎡)

17.13坪56.63m2

構造

鉄骨造

保証金・敷金

-

契約期間

2年

礼金

-

希望譲渡額

0万円

共益費 / 管理費

-

償却

-

更新料

-

情報公開日(更新日)

2013-12-06

現テナントの基本情報

業態

カフェバー

営業年数

-

営業時間

-

席数

-

コメント

-

この案件の取り扱い会社

募集終了しました

別の案件を探す
相談0円 居抜きで売却するなら、早めのご相談がおすすめです! 詳しく見る