受付時間:平日9時~17時
売却マイページ
譲渡No.4144

港区のクラブの居抜き売却物件の案件情報 田町駅・三田駅商圏内!同業態であれば即営業可能です。

案件概要

最寄り駅

田町 (JR京浜東北・根岸線)
徒歩6

現賃料 / 坪単価

- / 15,627

面積 坪(㎡)

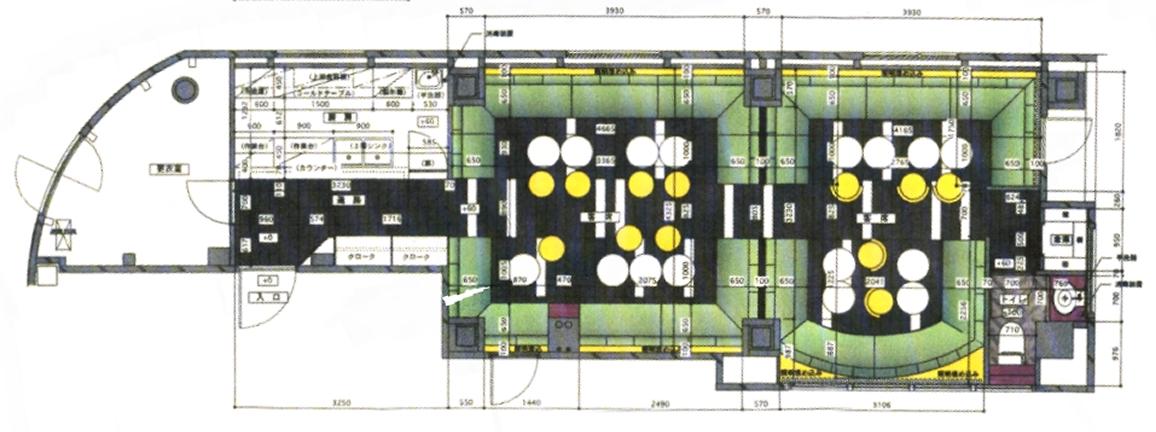
22.4坪74.04m2

希望譲渡額

270万円

前業態

クラブ

募集終了しました

案件詳細情報

所在地

東京23区 港区

最寄り駅

田町 (JR京浜東北・根岸線) 徒歩6分

三田 (都営三田線) 徒歩4分

現賃料 / 坪単価

- / 15,627円

階数 / 建物

地上4階 / 地上6地下1階建

面積 坪(㎡)

22.4坪74.04m2

構造

鉄骨造

保証金・敷金

-

契約期間

3年

礼金

-

希望譲渡額

270万円

共益費 / 管理費

-

償却

-

更新料

-

情報公開日(更新日)

2013-05-13

現テナントの基本情報

業態

クラブ

営業年数

-

営業時間

-

席数

-

コメント

-

この案件の取り扱い会社

募集終了しました

別の案件を探す
相談0円 居抜きで売却するなら、早めのご相談がおすすめです! 詳しく見る