受付時間:平日9時~17時
売却マイページ
譲渡No.3853

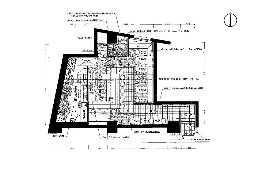
港区のダイニングバーの居抜き売却物件の案件情報 西麻布交差点付近の1階店舗です。

案件概要

最寄り駅

乃木坂 (東京メトロ千代田線)
徒歩8

現賃料 / 坪単価

- / 22,281

面積 坪(㎡)

20.96坪69.29m2

希望譲渡額

相談

前業態

ダイニングバー

募集終了しました

案件詳細情報

所在地

東京23区 港区

最寄り駅

乃木坂 (東京メトロ千代田線) 徒歩8分

六本木 (東京メトロ日比谷線) 徒歩10分

現賃料 / 坪単価

- / 22,281円

階数 / 建物

地上1階 /

面積 坪(㎡)

20.96坪69.29m2

構造

保証金・敷金

-

契約期間

3年

礼金

-

希望譲渡額

相談

共益費 / 管理費

-

償却

-

更新料

-

情報公開日(更新日)

2012-12-25

現テナントの基本情報

業態

ダイニングバー

営業年数

-

営業時間

-

席数

-

コメント

-

この案件の取り扱い会社

募集終了しました

別の案件を探す
相談0円 居抜きで売却するなら、早めのご相談がおすすめです! 詳しく見る