受付時間:平日9時~17時
売却マイページ
譲渡No.3834

品川区の小料理屋の居抜き売却物件の案件情報 ビジネス街でランチ・ディナーの需要あり!

案件概要

最寄り駅

大森海岸 (京急本線)
徒歩2

現賃料 / 坪単価

- / 20,542

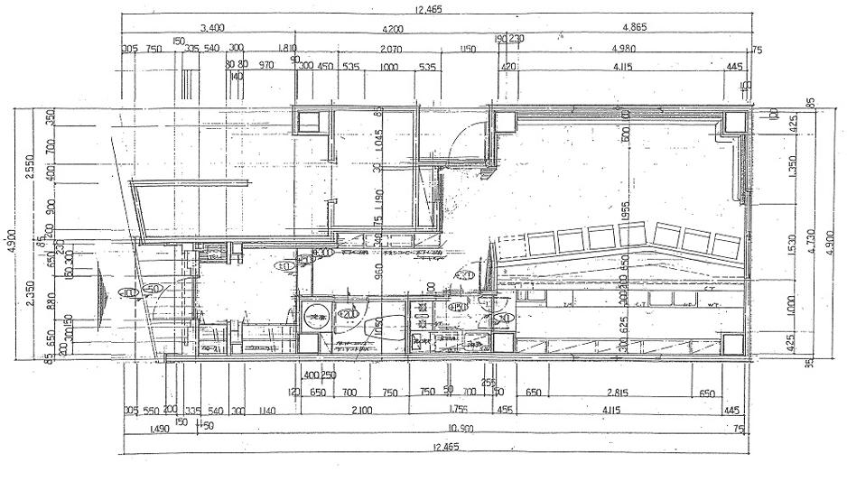
面積 坪(㎡)

12.37坪40.89m2

希望譲渡額

52.5万円

前業態

小料理屋

募集終了しました

案件詳細情報

所在地

東京23区 品川区

最寄り駅

大森海岸 (京急本線) 徒歩2分

大森 (JR京浜東北・根岸線) 徒歩8分

現賃料 / 坪単価

- / 20,542円

階数 / 建物

地上1階 /

面積 坪(㎡)

12.37坪40.89m2

構造

鉄骨造

保証金・敷金

-

契約期間

3年

礼金

-

希望譲渡額

52.5万円

共益費 / 管理費

-

償却

-

更新料

-

情報公開日(更新日)

2012-12-10

現テナントの基本情報

業態

小料理屋

営業年数

-

営業時間

-

席数

-

コメント

-

この案件の取り扱い会社

募集終了しました

別の案件を探す
相談0円 居抜きで売却するなら、早めのご相談がおすすめです! 詳しく見る