受付時間:平日9時~17時
売却マイページ
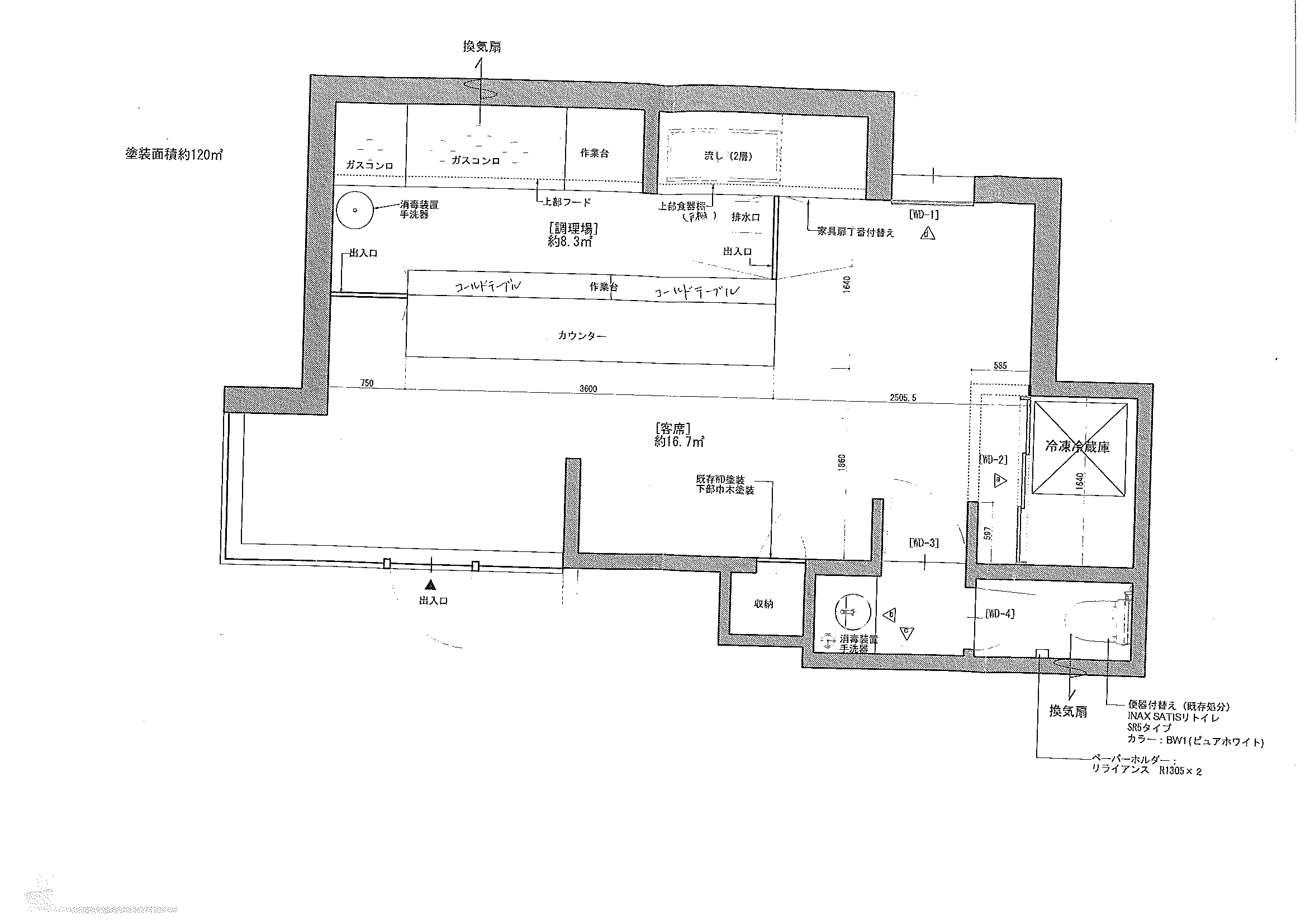
譲渡No.3317

渋谷区のイタリアンの居抜き売却物件の案件情報 内装美装!一見の価値ありの隠れ家イタリアン譲渡情報です!

案件概要

最寄り駅

代官山 (東急東横線)
徒歩6

現賃料 / 坪単価

- / 25,160

面積 坪(㎡)

10.43坪34.49m2

希望譲渡額

100万円

前業態

イタリアン

募集終了しました

案件詳細情報

所在地

東京23区 渋谷区

最寄り駅

代官山 (東急東横線) 徒歩6分

渋谷 (JR山手線) 徒歩7分

現賃料 / 坪単価

- / 25,160円

階数 / 建物

地上1階 / 地上3階建

面積 坪(㎡)

10.43坪34.49m2

構造

木造

保証金・敷金

-

契約期間

3年

礼金

-

希望譲渡額

100万円

共益費 / 管理費

-

償却

-

更新料

-

情報公開日(更新日)

2012-04-16

現テナントの基本情報

業態

イタリアン

営業年数

-

営業時間

-

席数

-

コメント

-

この案件の取り扱い会社

募集終了しました

別の案件を探す
相談0円 居抜きで売却するなら、早めのご相談がおすすめです! 詳しく見る