受付時間:平日9時~17時
売却マイページ
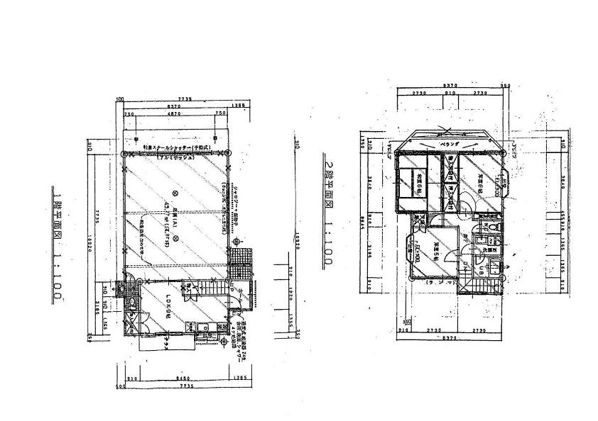
譲渡No.2837

横浜市青葉区のパン屋の居抜き売却物件の案件情報 駅、徒歩27分! 住居併用の店舗! 店舗前に駐車スペースあり!

案件概要

最寄り駅

あざみ野 (東急田園都市線)
徒歩27

現賃料 / 坪単価

- / 5,430

面積 坪(㎡)

36.83坪121.75m2

希望譲渡額

150万円

前業態

パン屋

募集終了しました

案件詳細情報

所在地

神奈川県 横浜市青葉区

最寄り駅

あざみ野 (東急田園都市線) 徒歩27分

市が尾 (東急田園都市線) 徒歩24分

現賃料 / 坪単価

- / 5,430円

階数 / 建物

地上1-地上2階 / 地上2階建

面積 坪(㎡)

36.83坪121.75m2

構造

木造

保証金・敷金

-

契約期間

5年

礼金

-

希望譲渡額

150万円

共益費 / 管理費

-

償却

-

更新料

-

情報公開日(更新日)

2011-09-15

現テナントの基本情報

業態

パン屋

営業年数

-

営業時間

-

席数

-

コメント

-

この案件の取り扱い会社

募集終了しました

別の案件を探す
相談0円 居抜きで売却するなら、早めのご相談がおすすめです! 詳しく見る