受付時間:平日9時~17時
売却マイページ
譲渡No.2654

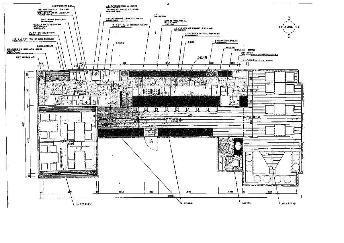
港区の和食の居抜き売却物件の案件情報 駅、徒歩10分! 高級感ある和風の内装。 厨房設備充実。 美装!

案件概要

最寄り駅

広尾 (東京メトロ日比谷線)
徒歩10

現賃料 / 坪単価

- / 13,611

面積 坪(㎡)

27坪89.25m2

希望譲渡額

100万円

前業態

和食

募集終了しました

案件詳細情報

所在地

東京23区 港区

最寄り駅

広尾 (東京メトロ日比谷線) 徒歩10分

表参道 (東京メトロ半蔵門線) 徒歩15分

現賃料 / 坪単価

- / 13,611円

階数 / 建物

地上4階 / 地上4階建

面積 坪(㎡)

27坪89.25m2

構造

鉄筋コンクリート造

保証金・敷金

-

契約期間

2年

礼金

-

希望譲渡額

100万円

共益費 / 管理費

-

償却

-

更新料

-

情報公開日(更新日)

2011-06-13

現テナントの基本情報

業態

和食

営業年数

-

営業時間

-

席数

-

コメント

-

この案件の取り扱い会社

募集終了しました

別の案件を探す
相談0円 居抜きで売却するなら、早めのご相談がおすすめです! 詳しく見る