受付時間:平日9時~17時
売却マイページ
譲渡No.11254

高槻市のカフェの居抜き売却物件の案件情報 高槻駅直結!商業施設内!カフェ居抜き物件!

案件概要

最寄り駅

高槻 (JR東海道本線)
徒歩5

現賃料 / 坪単価

30.8万円 / 8,703

面積 坪(㎡)

35.39坪116.99m2

希望譲渡額

500万円

前業態

カフェ

この案件へ問い合わせる

問い合わせには飲食店ドットコム会員登録が必要です。
無料会員登録ログイン

案件詳細情報

所在地

大阪府 高槻市

最寄り駅

高槻 (JR東海道本線) 徒歩5分

高槻市 (阪急京都本線) 徒歩10分

現賃料 / 坪単価

30.8万円 / 8,703円

階数 / 建物

地上4階 / 地上5階建

面積 坪(㎡)

35.39坪116.99m2

構造

鉄骨造

保証金・敷金

200万円

契約期間

6年

礼金

希望譲渡額

500万円

共益費 / 管理費

10945円/月

償却

なし

更新料

情報公開日(更新日)

2026-01-07

現テナントの基本情報

業態

カフェ

営業年数

0.8年

営業時間

11:00 - 21:00

席数

48席

コメント

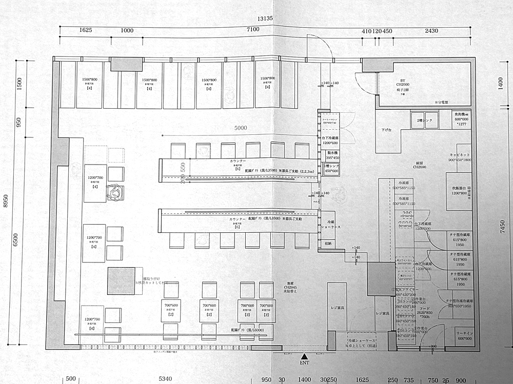
JR高槻駅直結の大型商業施設レストラン街、カフェ居抜き物件!
・テーブル36席、カウンター12席
・都市ガス、グリストラップあり
・店会費月額3,391円・事務管理費月額3,000円
・レジスター、キャット端末使用費月額9,000円
・現契約条件につき、新契約では変更の可能性あり
・家賃保証、店舗総合保険の加入が必須です。
・企画料1ヵ月分。造作譲渡手数料10%
--------------------------------------------------------------------------------
※賃貸条件については現状のものとなりますので、変更の可能性があります。
※取扱会社規定の賃貸借契約手数料、譲渡契約手数料が発生します。
※現在営業中の店舗もありますので、店舗への連絡、従業員及び、関係者への物件に関するお問い合せ、
写真撮影、店内での本物件に関する話題等、営業に支障をきたす行為は固く禁止致します。

この案件の取り扱い会社

株式会社フードビジネスロード

東京都大田区西蒲田7-65-9

担当者:渡邊 元

この案件へ問い合わせる

問い合わせには飲食店ドットコム会員登録が必要です。
無料会員登録ログイン

別の案件を探す
相談0円 居抜きで売却するなら、早めのご相談がおすすめです! 詳しく見る