受付時間:平日9時~17時
売却マイページ
譲渡No.11180

港区の 焼肉の居抜き売却物件の案件情報 六本木駅徒歩1分!焼き肉店居抜き物件!

この案件の反響

ご相談から募集開始までの期間

1日

問い合わせ数

4件

募集開始から売却までの期間

77日

案件概要

最寄り駅

六本木 (東京メトロ日比谷線)
徒歩1

現賃料 / 坪単価

- / 30,655

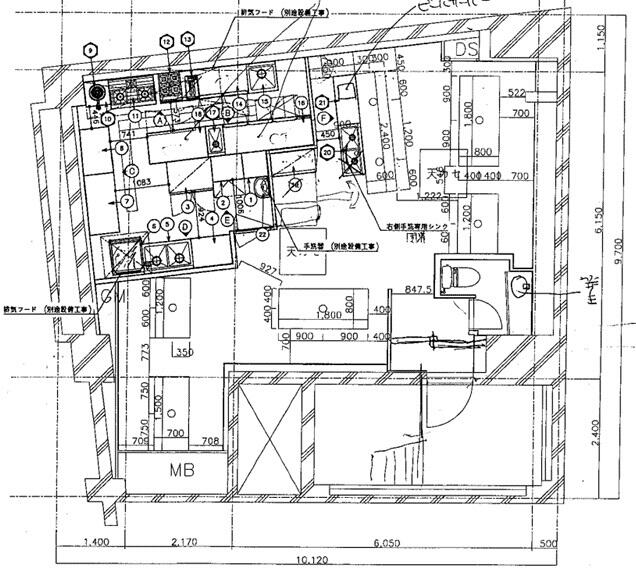
面積 坪(㎡)

26.015坪86.0m2

希望譲渡額

800万円

前業態

 焼肉

募集終了しました

案件詳細情報

所在地

東京23区 港区

最寄り駅

六本木 (東京メトロ日比谷線) 徒歩1分

六本木 (都営大江戸線) 徒歩1分

現賃料 / 坪単価

- / 30,655円

階数 / 建物

地下1階 / 地上6階建

面積 坪(㎡)

26.015坪86.0m2

構造

SRC造

保証金・敷金

-

契約期間

2年

礼金

-

希望譲渡額

800万円

共益費 / 管理費

-

償却

-

更新料

-

情報公開日(更新日)

2024-11-28

売却テナントの基本情報

業態

 焼肉

営業年数

4年

営業時間

18:00 - 05:00

席数

30席

コメント

六本木駅徒歩1分!焼き肉店居抜き物件!
ミッドタウンからもほど近いビル内店舗!
焼肉店の設備充実!同業態であればすぐに営業が可能です!
※詳しくはお問い合わせください。
--------------------------------------------------------------------------------
※賃貸条件については現状のものとなりますので、変更の可能性があります。
※取扱会社規定の賃貸借契約手数料、譲渡契約手数料が発生します。
※現在営業中の店舗もありますので、店舗への連絡、従業員及び、関係者への物件に関するお問い合せ、
写真撮影、店内での本物件に関する話題等、営業に支障をきたす行為は固く禁止致します。

この案件の取り扱い会社

募集終了しました

あなたにおすすめの案件

別の案件を探す
相談0円 居抜きで売却するなら、早めのご相談がおすすめです! 詳しく見る