受付時間:平日9時~17時
売却マイページ
譲渡No.10905

港区のパティスリーの居抜き売却物件の案件情報 白金高輪駅徒歩2分!パティスリー居抜き物件!

この案件の反響

ご相談から募集開始までの期間

6日

問い合わせ数

13件

募集開始から売却までの期間

非公開

案件概要

最寄り駅

白金高輪 (都営三田線)
徒歩2

現賃料 / 坪単価

- / 29,451

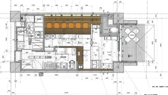
面積 坪(㎡)

14.94坪49.4m2

希望譲渡額

440万円

前業態

パティスリー

募集終了しました

案件詳細情報

所在地

東京23区 港区

最寄り駅

白金高輪 (都営三田線) 徒歩2分

白金高輪 (東京メトロ南北線) 徒歩2分

現賃料 / 坪単価

- / 29,451円

階数 / 建物

地上1階 / 地上9階建

面積 坪(㎡)

14.94坪49.4m2

構造

鉄筋コンクリート造造

保証金・敷金

-

契約期間

2年間

礼金

-

希望譲渡額

440万円

共益費 / 管理費

-

償却

-

更新料

-

情報公開日(更新日)

2024-07-31

売却テナントの基本情報

業態

パティスリー

営業年数

2年

営業時間

9:00~19:00

席数

9席

コメント

都営地下鉄三田線・東京メトロ南北線「白金高輪駅」4出口より徒歩2分
パティスリーとしての設備充実。白金高輪にあった素敵な内装です。

譲渡該当外物品
・マルチフレッシュ
・2枚扉冷蔵庫
・ジェラートフリーザー
・パステライザー
・ペーストリーオーブン(設置台含む)
・ミキサー
・店内装飾品(ペンライト含む)
詳細は内見時にお伝えいたします。
--------------------------------------------------------------------------------
※賃貸条件については現状のものとなりますので、変更の可能性があります。
※取扱会社規定の賃貸借契約手数料、譲渡契約手数料が発生します。
※現在営業中の店舗もありますので、店舗への連絡、従業員及び、関係者への物件に関するお問い合せ、
写真撮影、店内での本物件に関する話題等、営業に支障をきたす行為は固く禁止致します。

この案件の取り扱い会社

募集終了しました

あなたにおすすめの案件

別の案件を探す
相談0円 居抜きで売却するなら、早めのご相談がおすすめです! 詳しく見る