受付時間:平日9時~17時
売却マイページ
譲渡No.10318

渋谷区のテイクアウトの居抜き売却物件の案件情報 笹塚駅より徒歩1分!客席有!テイクアウト居抜き物件!

この案件の反響

ご相談から募集開始までの期間

1日

問い合わせ数

21件

募集開始から売却までの期間

267日

案件概要

最寄り駅

笹塚 (京王本線)
徒歩1

現賃料 / 坪単価

- / 25,287

面積 坪(㎡)

8.7坪28.75m2

希望譲渡額

50万円

前業態

テイクアウト

募集終了しました

案件詳細情報

所在地

東京23区 渋谷区

最寄り駅

笹塚 (京王本線) 徒歩1分

現賃料 / 坪単価

- / 25,287円

階数 / 建物

地上4階 / 地上8地下1階建

面積 坪(㎡)

8.7坪28.75m2

構造

SRC造

保証金・敷金

-

契約期間

普通3年

礼金

-

希望譲渡額

50万円

共益費 / 管理費

-

償却

-

更新料

-

情報公開日(更新日)

2024-05-14

売却テナントの基本情報

業態

テイクアウト

営業年数

2.6年

営業時間

【ランチ】12:00~15:00
【ディナー】17:00~23:00

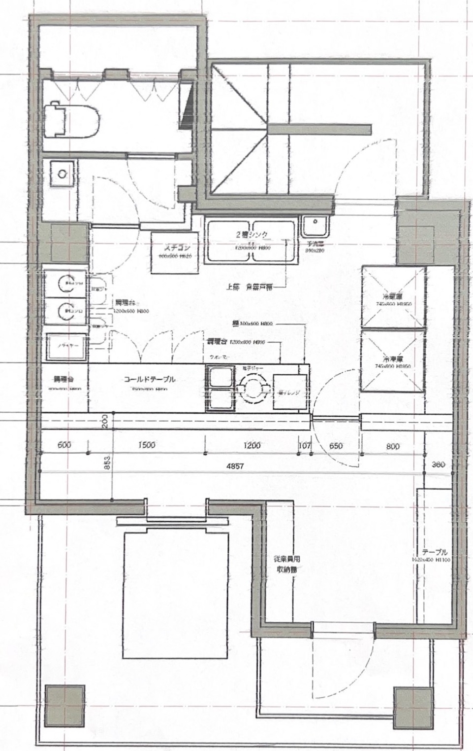
席数

5席

コメント

譲渡金額が減額になりました!70万円→50万円!
笹塚駅より徒歩1分!客席有!テイクアウト居抜き物件!
カフェやテイクアウトなどの業態向け。
内装、設備ともにキレイな状態です。

※家賃保証あり
※火災保険要加入

営業年数:スケルトンから2.6年
リース品:無
撤去物:無
懸念トラブル:無
業態制限:無(カラオケ相談可能)
営業時間制限:無
席数:カウンター5席
電気容量:電灯50A 動力75A
ガス:無
ダクト:直吹き
グリスト:置き型
防水:無
--------------------------------------------------------------------------------
※賃貸条件については現状のものとなりますので、変更の可能性があります。
※取扱会社規定の賃貸借契約手数料、譲渡契約手数料が発生します。
※現在営業中の店舗もありますので、店舗への連絡、従業員及び、関係者への物件に関するお問い合せ、
写真撮影、店内での本物件に関する話題等、営業に支障をきたす行為は固く禁止致します。

この案件の取り扱い会社

募集終了しました

あなたにおすすめの案件

別の案件を探す
相談0円 居抜きで売却するなら、早めのご相談がおすすめです! 詳しく見る