受付時間:平日9時~17時
売却マイページ
譲渡No.9977

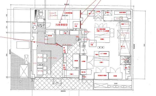
豊島区のセントラルキッチンの居抜き売却物件の案件情報 池袋駅から徒歩10分!セントラルキッチン居抜き物件!

案件概要

最寄り駅

池袋 (JR山手線)
徒歩10

現賃料 / 坪単価

- / 10,564

面積 坪(㎡)

30.492坪100.8m2

希望譲渡額

300万円

前業態

セントラルキッチン

募集終了しました

案件詳細情報

所在地

東京23区 豊島区

最寄り駅

池袋 (JR山手線) 徒歩10分

椎名町 (西武池袋線) 徒歩5分

現賃料 / 坪単価

- / 10,564円

階数 / 建物

地上1階 / 地上3階建

面積 坪(㎡)

30.492坪100.8m2

構造

鉄骨造

保証金・敷金

-

契約期間

2年

礼金

-

希望譲渡額

300万円

共益費 / 管理費

-

償却

-

更新料

-

情報公開日(更新日)

2023-08-17

現テナントの基本情報

業態

セントラルキッチン

営業年数

-

営業時間

-

席数

-

コメント

-

この案件の取り扱い会社

募集終了しました

別の案件を探す
相談0円 居抜きで売却するなら、早めのご相談がおすすめです! 詳しく見る