受付時間:平日9時~17時
売却マイページ
譲渡No.9829

大阪市福島区のイタリアンの居抜き売却物件の案件情報 野田駅徒歩3分!イタリアン居抜き物件!

案件概要

最寄り駅

玉川 (地下鉄千日前線)
徒歩1

現賃料 / 坪単価

- / 13,031

面積 坪(㎡)

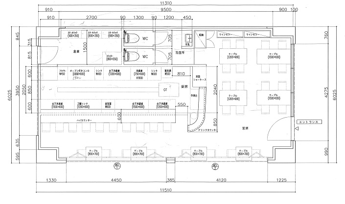
20.26坪66.99m2

希望譲渡額

150万円

前業態

イタリアン

募集終了しました

案件詳細情報

所在地

大阪府 大阪市福島区

最寄り駅

玉川 (地下鉄千日前線) 徒歩1分

現賃料 / 坪単価

- / 13,031円

階数 / 建物

地上1階 / 地上1階建

面積 坪(㎡)

20.26坪66.99m2

構造

鉄筋鉄骨コンクリート造

保証金・敷金

-

契約期間

定借10年

礼金

-

希望譲渡額

150万円

共益費 / 管理費

-

償却

-

更新料

-

情報公開日(更新日)

2023-03-30

売却テナントの基本情報

業態

イタリアン

営業年数

-

営業時間

-

席数

-

コメント

-

この案件の取り扱い会社

募集終了しました

別の案件を探す
相談0円 居抜きで売却するなら、早めのご相談がおすすめです! 詳しく見る