受付時間:平日9時~17時
売却マイページ
譲渡No.9370

越谷市の洋食の居抜き売却物件の案件情報 南越谷駅2分!!イタリアンレストラン居抜き物件!

案件概要

最寄り駅

南越谷 (JR武蔵野線)
徒歩2

現賃料 / 坪単価

- / 11,788

面積 坪(㎡)

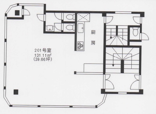
39.66坪131.11m2

希望譲渡額

50万円

前業態

洋食

募集終了しました

案件詳細情報

所在地

埼玉県 越谷市

最寄り駅

南越谷 (JR武蔵野線) 徒歩2分

新越谷 (東武伊勢崎線) 徒歩3分

現賃料 / 坪単価

- / 11,788円

階数 / 建物

地上2階 / 地上2階建

面積 坪(㎡)

39.66坪131.11m2

構造

RC 造

保証金・敷金

-

契約期間

定期借家3年

礼金

-

希望譲渡額

50万円

共益費 / 管理費

-

償却

-

更新料

-

情報公開日(更新日)

2022-09-28

売却テナントの基本情報

業態

洋食

営業年数

-

営業時間

-

席数

-

コメント

-

この案件の取り扱い会社

募集終了しました

別の案件を探す
相談0円 居抜きで売却するなら、早めのご相談がおすすめです! 詳しく見る