受付時間:平日9時~17時
売却マイページ
譲渡No.9284

足立区の居酒屋の居抜き売却物件の案件情報 西新井駅徒歩6分!居酒屋居抜き物件!

案件概要

最寄り駅

西新井 (東武伊勢崎線)
徒歩6

現賃料 / 坪単価

- / 12,855

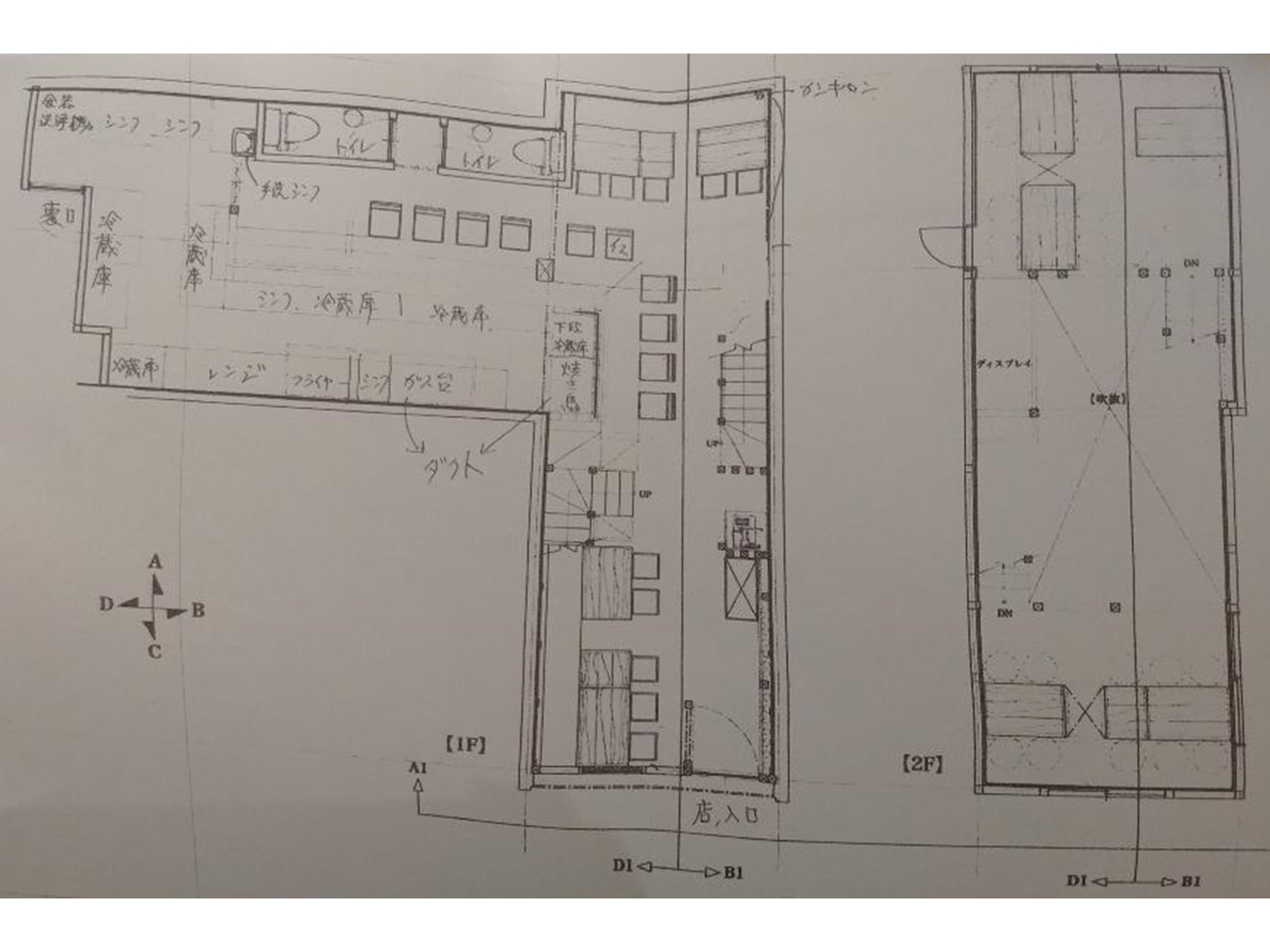
面積 坪(㎡)

29.95坪99.0m2

希望譲渡額

50万円

前業態

居酒屋

募集終了しました

案件詳細情報

所在地

東京23区 足立区

最寄り駅

西新井 (東武伊勢崎線) 徒歩6分

現賃料 / 坪単価

- / 12,855円

階数 / 建物

地上1-地上2階 / 地上2階建

面積 坪(㎡)

29.95坪99.0m2

構造

木造

保証金・敷金

-

契約期間

5年

礼金

-

希望譲渡額

50万円

共益費 / 管理費

-

償却

-

更新料

-

情報公開日(更新日)

2023-02-26

売却テナントの基本情報

業態

居酒屋

営業年数

-

営業時間

-

席数

-

コメント

-

この案件の取り扱い会社

募集終了しました

別の案件を探す
相談0円 居抜きで売却するなら、早めのご相談がおすすめです! 詳しく見る