受付時間:平日9時~17時
売却マイページ
譲渡No.9232

品川区のテイクアウトの居抜き売却物件の案件情報 旗の台駅徒歩1分!テイクアウト専門店居抜き物件!

案件概要

最寄り駅

旗の台 (東急大井町線)
徒歩1

現賃料 / 坪単価

- / 21,228

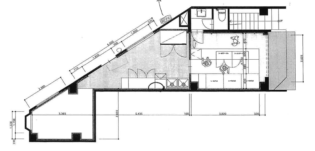
面積 坪(㎡)

13.99坪46.25m2

希望譲渡額

250万円

前業態

テイクアウト

募集終了しました

案件詳細情報

所在地

東京23区 品川区

最寄り駅

旗の台 (東急大井町線) 徒歩1分

旗の台 (東急池上線) 徒歩1分

現賃料 / 坪単価

- / 21,228円

階数 / 建物

地上1階 / 地上3階建

面積 坪(㎡)

13.99坪46.25m2

構造

鉄骨造

保証金・敷金

-

契約期間

普通3年

礼金

-

希望譲渡額

250万円

共益費 / 管理費

-

償却

-

更新料

-

情報公開日(更新日)

2022-08-08

現テナントの基本情報

業態

テイクアウト

営業年数

-

営業時間

-

席数

-

コメント

-

この案件の取り扱い会社

募集終了しました

別の案件を探す
相談0円 居抜きで売却するなら、早めのご相談がおすすめです! 詳しく見る