受付時間:平日9時~17時
売却マイページ
譲渡No.9016

神戸市垂水区のカフェの居抜き売却物件の案件情報 総合運動駅徒歩20分!カフェ居抜き物件です

案件概要

最寄り駅

総合運動公園 (地下鉄西神・山手線)
徒歩20

現賃料 / 坪単価

- / 5,168

面積 坪(㎡)

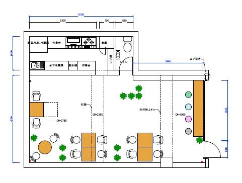
14.9坪49.03m2

希望譲渡額

180万円

前業態

カフェ

募集終了しました

案件詳細情報

所在地

兵庫県 神戸市垂水区

最寄り駅

総合運動公園 (地下鉄西神・山手線) 徒歩20分

現賃料 / 坪単価

- / 5,168円

階数 / 建物

地上1階 / 地上8階建

面積 坪(㎡)

14.9坪49.03m2

構造

RC造

保証金・敷金

-

契約期間

普通借2年

礼金

-

希望譲渡額

180万円

共益費 / 管理費

-

償却

-

更新料

-

情報公開日(更新日)

2022-01-20

現テナントの基本情報

業態

カフェ

営業年数

-

営業時間

-

席数

-

コメント

-

この案件の取り扱い会社

募集終了しました

別の案件を探す
相談0円 居抜きで売却するなら、早めのご相談がおすすめです! 詳しく見る