受付時間:平日9時~17時
売却マイページ
譲渡No.8624

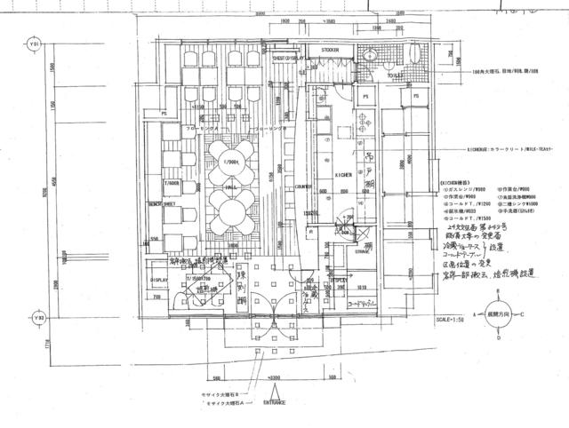
文京区のカフェの居抜き売却物件の案件情報 駅徒歩5分、カフェ業態の居抜き店舗情報!

案件概要

最寄り駅

茗荷谷 (東京メトロ丸ノ内線)
徒歩5

現賃料 / 坪単価

- / 11,532

面積 坪(㎡)

22.763坪75.25m2

希望譲渡額

200万円

前業態

カフェ

募集終了しました

案件詳細情報

所在地

東京23区 文京区

最寄り駅

茗荷谷 (東京メトロ丸ノ内線) 徒歩5分

現賃料 / 坪単価

- / 11,532円

階数 / 建物

地上1階 / 地上10階建

面積 坪(㎡)

22.763坪75.25m2

構造

鉄骨鉄筋コンクリート造

保証金・敷金

-

契約期間

2年

礼金

-

希望譲渡額

200万円

共益費 / 管理費

-

償却

-

更新料

-

情報公開日(更新日)

2020-10-22

現テナントの基本情報

業態

カフェ

営業年数

-

営業時間

-

席数

-

コメント

-

この案件の取り扱い会社

募集終了しました

別の案件を探す
相談0円 居抜きで売却するなら、早めのご相談がおすすめです! 詳しく見る