受付時間:平日9時~17時
売却マイページ
譲渡No.8532

さいたま市北区の和食の居抜き売却物件の案件情報 加茂宮駅駅出て目の前!交通量の多い国道17号沿い!

案件概要

最寄り駅

加茂宮 (ニューシャトル)
徒歩1

現賃料 / 坪単価

- / 10,885

面積 坪(㎡)

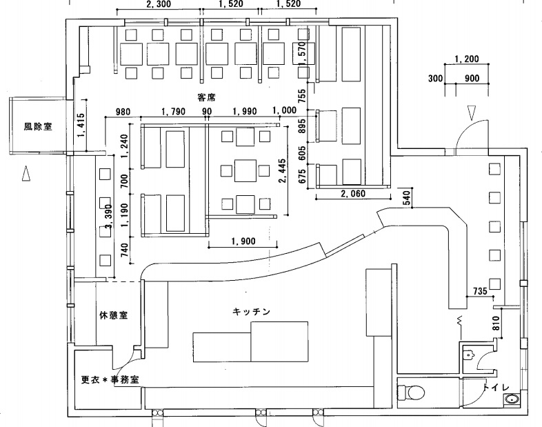
37.24坪123.12m2

希望譲渡額

60万円

前業態

和食

募集終了しました

案件詳細情報

所在地

埼玉県 さいたま市北区

最寄り駅

加茂宮 (ニューシャトル) 徒歩1分

現賃料 / 坪単価

- / 10,885円

階数 / 建物

地上1階 / 地上1階建

面積 坪(㎡)

37.24坪123.12m2

構造

軽量鉄骨平家造

保証金・敷金

-

契約期間

3年

礼金

-

希望譲渡額

60万円

共益費 / 管理費

-

償却

-

更新料

-

情報公開日(更新日)

2020-10-13

売却テナントの基本情報

業態

和食

営業年数

-

営業時間

-

席数

-

コメント

-

この案件の取り扱い会社

募集終了しました

別の案件を探す
相談0円 居抜きで売却するなら、早めのご相談がおすすめです! 詳しく見る