受付時間:平日9時~17時
売却マイページ
譲渡No.8413

横浜市西区のフランス料理の居抜き売却物件の案件情報 みなとみらい駅近く! オフィスビル併設の商業施設内店舗!

この案件の反響

ご相談から募集開始までの期間

12日

問い合わせ数

20件

募集開始から売却までの期間

非公開

案件概要

最寄り駅

みなとみらい (みなとみらい線)
徒歩6

現賃料 / 坪単価

- / 13,199

面積 坪(㎡)

92.89坪307.09m2

希望譲渡額

200万円

前業態

フランス料理

募集終了しました

案件詳細情報

所在地

神奈川県 横浜市西区

最寄り駅

みなとみらい (みなとみらい線) 徒歩6分

現賃料 / 坪単価

- / 13,199円

階数 / 建物

地上2階 / 地上26地下2階建

面積 坪(㎡)

92.89坪307.09m2

構造

SRC造

保証金・敷金

-

契約期間

定借3年

礼金

-

希望譲渡額

200万円

共益費 / 管理費

-

償却

-

更新料

-

情報公開日(更新日)

2024-06-30

売却テナントの基本情報

業態

フランス料理

営業年数

8.2年

営業時間

11:30~14:30
17:30~21:00

席数

80席

コメント

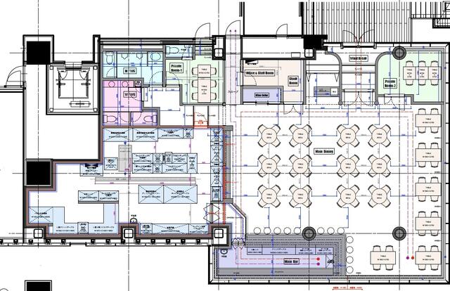
みなとみらい駅近く。
オフィスビル併設の商業施設内、フレンチレストランの店舗です。

店内は80席。個室があり、トイレも男女別で設けられています。
スタッフルームもあります。

※別途費用あり。
・開業時共同サイン費:実費相当額
・経常販売促進費:月額52,800円
・外部看板使用料:月額11,000円
・テナント会費:1,100円

[譲渡内容]
4口ガスレンジ(オーブン2付)
3口ガスレンジ
スチームコンベクションオーブン
フライヤー
溶岩グリラー
ユーログリル
コールドテーブル
縦型冷蔵庫6面
縦型冷凍冷蔵庫6面
ショーケース
製氷機
食洗機
ディッシュウォーマー
ワインセラー
ストッカー(大・中・小)


--------------------------------------------------------------------------------
※賃貸条件については現状のものとなりますので、変更の可能性があります。
※取扱会社規定の賃貸借契約手数料、譲渡契約手数料が発生します。
※現在営業中の店舗もありますので、店舗への連絡、従業員及び、関係者への物件に関するお問い合せ、
写真撮影、店内での本物件に関する話題等、営業に支障をきたす行為は固く禁止致します。

この案件の取り扱い会社

募集終了しました

あなたにおすすめの案件

別の案件を探す
相談0円 居抜きで売却するなら、早めのご相談がおすすめです! 詳しく見る