受付時間:平日9時~17時
売却マイページ
譲渡No.8391

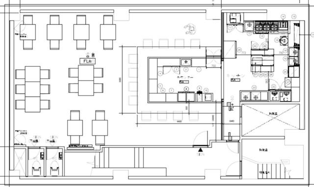
豊島区のイタリアンの居抜き売却物件の案件情報 劇場通りに面したビル地下1階 専用階段あり

案件概要

最寄り駅

池袋 (JR山手線)
徒歩3

現賃料 / 坪単価

- / 18,982

面積 坪(㎡)

40.299坪133.22m2

希望譲渡額

1000万円

前業態

イタリアン

募集終了しました

案件詳細情報

所在地

東京23区 豊島区

最寄り駅

池袋 (JR山手線) 徒歩3分

現賃料 / 坪単価

- / 18,982円

階数 / 建物

地下1階 / 地上10地下1階建

面積 坪(㎡)

40.299坪133.22m2

構造

鉄骨鉄筋コンクリート造

保証金・敷金

-

契約期間

5年

礼金

-

希望譲渡額

1000万円

共益費 / 管理費

-

償却

-

更新料

-

情報公開日(更新日)

2020-10-27

現テナントの基本情報

業態

イタリアン

営業年数

-

営業時間

-

席数

-

コメント

-

この案件の取り扱い会社

募集終了しました

別の案件を探す
相談0円 居抜きで売却するなら、早めのご相談がおすすめです! 詳しく見る