受付時間:平日9時~17時
売却マイページ
譲渡No.8389

大田区のカフェの居抜き売却物件の案件情報 東急線 長原駅近く!商店街内のカフェ居抜き!

案件概要

最寄り駅

長原 (東急池上線)
徒歩3

現賃料 / 坪単価

- / 11,329

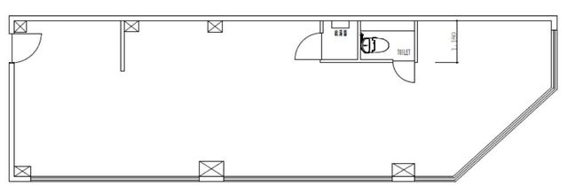
面積 坪(㎡)

20.02坪66.21m2

希望譲渡額

120万円

前業態

カフェ

募集終了しました

案件詳細情報

所在地

東京23区 大田区

最寄り駅

長原 (東急池上線) 徒歩3分

現賃料 / 坪単価

- / 11,329円

階数 / 建物

地上2階 / 地上4階建

面積 坪(㎡)

20.02坪66.21m2

構造

鉄骨造

保証金・敷金

-

契約期間

2年間

礼金

-

希望譲渡額

120万円

共益費 / 管理費

-

償却

-

更新料

-

情報公開日(更新日)

2020-05-27

現テナントの基本情報

業態

カフェ

営業年数

-

営業時間

-

席数

-

コメント

-

この案件の取り扱い会社

募集終了しました

別の案件を探す
相談0円 居抜きで売却するなら、早めのご相談がおすすめです! 詳しく見る